Main Content

    Property
    1200 Girard Street

    Home » Listings » 1200 Girard Street

    $1,062,800

    Price

    3

    Beds

    2

    Baths

    1,375

    Sq.Ft.

    Visitacion Valley

    Neighborhood

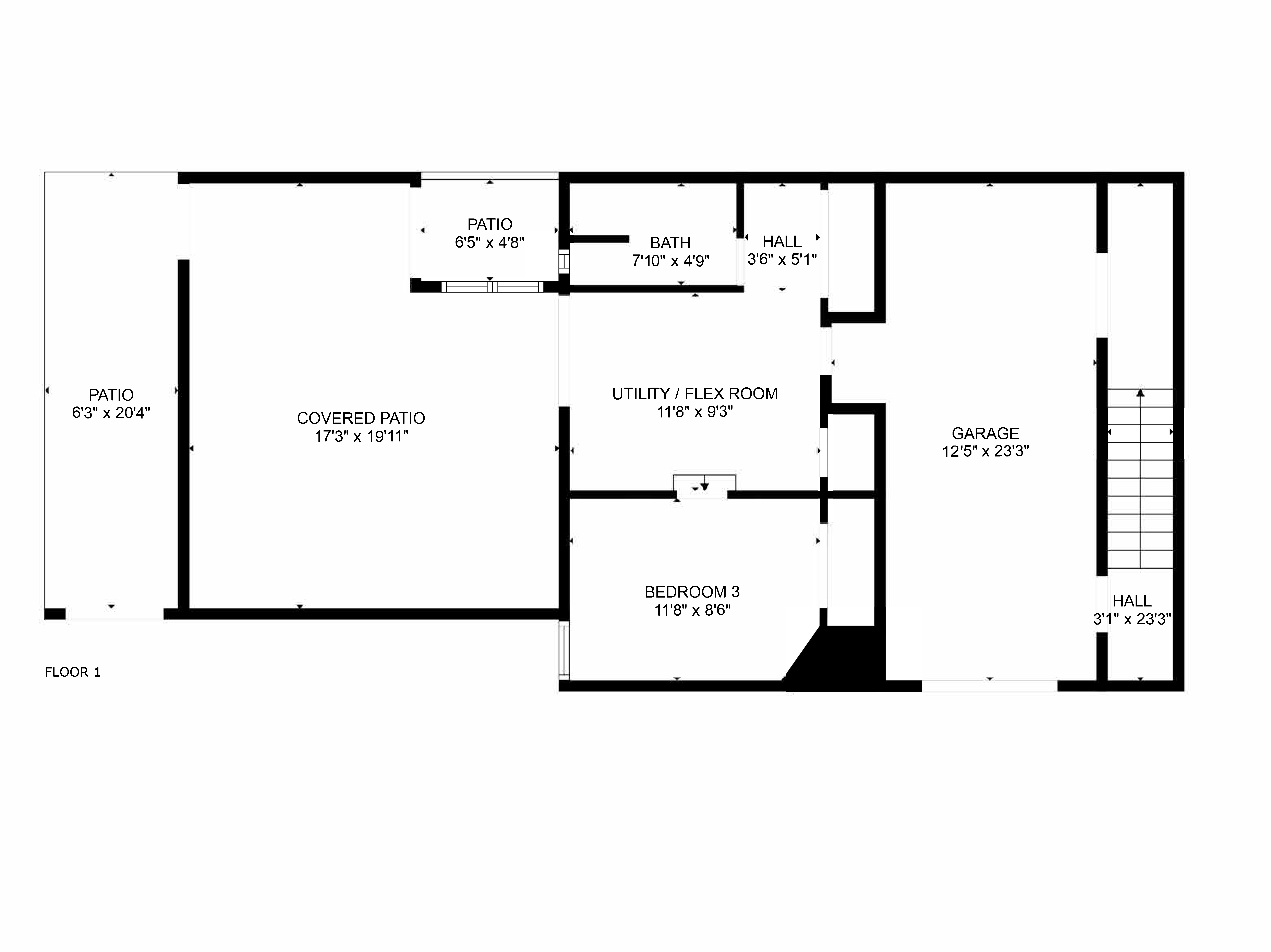
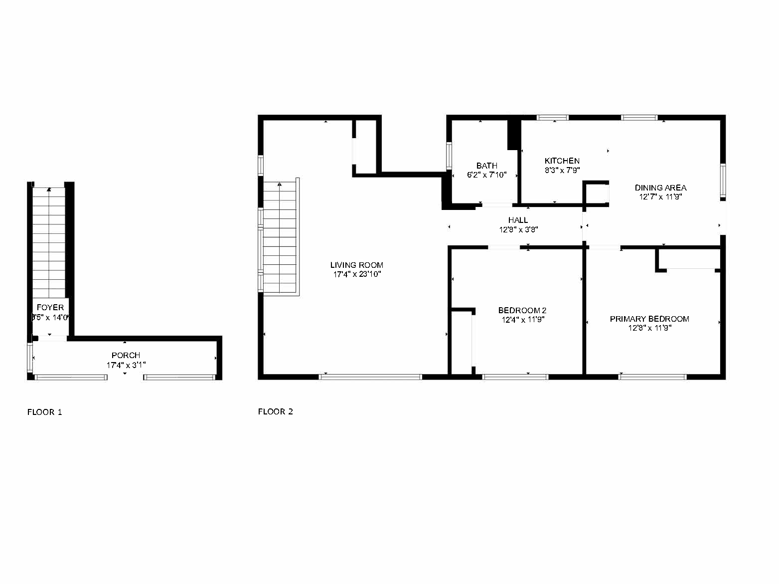
    Conveniently located on an expansive corner lot, this updated home offers exceptional flexibility with two street frontages. The entry foyer opens to a bright and spacious living area with expansive views, connecting to two well-proportioned bedrooms and a modern bathroom. The updated kitchen features contemporary countertops and new fixtures, opening to a cozy dinette space. A separate staircase leads to the lower-level rooms and bathroom, as well as a covered patio area. The garage accommodates one car and includes additional storage space.

    Panduan Gokil Buat Ngejar Maxwin di Slot Online Paling Hype

    Kalau akhir-akhir ini kamu sering nongkrong di TikTok, ikutan obrolan Discord, atau cuma santai bareng temen nongkrong https://eslot.sbs/ yang doyan game online, pasti pernah dengar istilah yang lagi rame banget: slot online yang rasanya kayak hujan cuan turun dari langit. Tidak pake nunggu lama, tidak bikin bete, tapi justru ngasih getaran adrenalin yang bikin pemain makin nagih.

    Slot sekarang jelas beda jauh sama mesin klasik yang dulu nongkrong di pojok bar. Slot modern tuh kece, cepat, grafiknya https://gemoy138.sbs/ mantap, dan yang paling penting bikin peluang menang jadi lebih terasa nyata. Sekali jackpot kena, rasanya kayak naik level dalam hidup beneran.

    Kenapa Banyak Orang Nyebut Slot Gacor

    Buat yang belum ngeh, istilah gacor udah jadi bahasa gaul wajib di dunia slot. Artinya simpel: game lagi baik hati https://indobet.sbs/ alias sering banget kasih scatter, wild, atau free spin yang bikin saldo meledak. Bayangin aja, lagi spin santai terus tiba-tiba layar penuh simbol emas. Itu baru namanya gacor.

    • RTP tinggi jadi incaran. Pemain sering nyari slot https://slotvip.bid/ dengan persentase RTP di atas 96 persen. Angka kayak gini bikin peluang balik modal lebih gede.
    • Maxwin menggoda. Ada slot yang kasih multiplier x5000, x10000 bahkan lebih. Dari taruhan receh bisa tiba-tiba jadi duit segunung.
    • Komunitas heboh. Begitu ada game gacor, kabarnya langsung nyebar di grup WA, forum Telegram, sampai live stream.

    Ciri Slot yang Bikin Nagih

    Tidak semua slot worth it buat dimainkan https://biroslot.link/. Ada yang beneran kasih sensasi kemenangan, ada juga yang bikin saldo langsung ambyar. Nah, ini dia ciri game slot yang biasanya jadi favorit:

    1. Bonus tidak pelit. Free spin gampang muncul, scatter gampang pecah, multiplier berlapis-lapis.
    2. Visual dan musik berkelas. Grafik neon, animasi smooth, atau soundtrack EDM bikin betah.
    3. Taruhan terjangkau. Modal tipis misalnya cuma 10 ribu, tapi tetap bisa ikut ngerasain vibe jackpot.
    4. Fitur wild dan scatter yang asik. Semakin sering muncul makin terasa kalau game lagi mood baik.

    Cara Ngebaca Slot Lagi Hidup atau Mati

    Kayak trader saham yang cek grafik https://agendunia55.cyou/, pemain slot juga punya trik buat tau game lagi enak atau tidak.

    • Lihat list RTP harian. Banyak platform update data tiap hari.
    • Ikutin omongan komunitas. Grup Telegram, Discord, atau cuplikan TikTok biasanya jadi bocoran cepat.
    • Coba tes spin kecil. Jangan langsung all in, mending coba dulu beberapa putaran.
    • Perhatikan pola. Kadang slot diem lama, tapi sekali panas bisa terus-terusan kasih hadiah.

    Mitos Main Tengah Malam

    Banyak pemain percaya kalau main tengah malam peluang menang https://indowin88jp.cyou/ lebih gede. Apakah itu fakta atau sugesti jawabannya relatif. Tapi kenyataannya banyak jackpot gede yang muncul pas jam-jam ngantuk.

    Mungkin karena suasana lebih tenang, mungkin juga karena sistem game lagi banyak kasih scatter. Yang jelas, sesi malam sering bikin pemain spam screenshot hasil menang di grup.

    Tema Slot yang Lagi Hits

    Tiap tahun ada aja game yang jadi trending topic. Kadang karena streamernya hype in, kadang karena fiturnya gila. Tipe slot yang sering jadi primadona biasanya seperti ini:

    • Tema petualangan. Jelajah hutan, cari harta karun, atau berburu bandit cowboy.
    • Nuansa Asia. Dragon, koi, sampai mahjong vibes selalu menarik.
    • Dewa dan mitologi. Zeus, Odin, atau dewi perang yang kasih petir sambil multiplier jatuh.
    • Cyberpunk style. Neon, grid futuristik, musik elektronik seperti lagi party rave virtual.

    Trik Main Biar Tidak Tekor

    Slot memang bikin nagih, tapi jangan sampai dompet ikutan https://rajapoker.sbs/ sakit hati. Makanya, pemain senior punya jurus sendiri:

    1. Tentukan batas modal. Jangan main pakai uang kebutuhan, cukup budget hiburan aja.
    2. Nikmati kemenangan kecil. Jangan nunggu maxwin doang, profit tipis juga rejeki.
    3. Pindah pindah game. Kalau satu slot udah kering, coba cari vibe lain.
    4. Tau kapan berhenti. Kadang yang bikin keren bukan menang besar, tapi bisa keluar meja dengan sisa saldo plus.

    Pentingnya Main di Platform Aman

    Sering ada cerita sedih, udah menang banyak tapi withdraw susah. Makanya pilih tempat main juga krusial.

    • Withdraw cepat. Jackpot cair dalam hitungan menit, bukan berhari-hari.
    • Anti blokir. Tidak ribet pake VPN, akses lancar setiap saat.
    • Bonus harian. Cashback, spin gratis, atau promo deposit jadi tambahan seru.
    • Aplikasi mobile lancar. Kebanyakan orang main di HP, jadi aplikasi ringan wajib hukumnya.

    Sisi Sosial dari Slot Online

    Jangan kira slot itu cuma soal spin sendirian https://slotvipgg.top/. Sekarang malah jadi aktivitas sosial.

    • TikTok penuh cuplikan scatter pecah beruntun.
    • Discord rame dengan orang pamer hasil maxwin.
    • Streamer dapet banyak viewers gara-gara kasih tontonan spin epik.

    Slot udah masuk ke budaya pop, jadi bagian gaya https://montgomeryleesf.com/market-report/ hidup digital anak zaman sekarang.

    Read More

    Property
    Listings Agents
    Property

    Amenities

    This 3,000 square foot oversized lot offers potential for ADU and expansion options, making it ideal for those seeking a large, accessible yard. The central location provides easy access to McLaren Park, schools, parks, and shopping.

    Skip to content